Apartment 4 rooms for sell in Cluj-napoca ID 5611
Price:
170 000 EURO negotiable
No. of rooms:
4
Floor:
3/8
New building:
no
Build year:
Before 1990
Finalized building:
yes
Comfort:
Marit
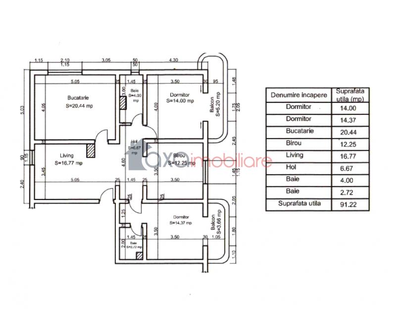
Build area:
92 m2
Balconies:
2 Finisate
City:
Cluj-Napoca
Zone:
Platinia
Street:
Calea Manastur
Add date:
14-01-2020
Update date:
05-01-2021
Views number:
19296
Characteristic details
Kitchen:
1
Bathrooms:
2
Garage:
1 Inclus in pret
Parking:
yes-Inclusa in pret
Cellar:
no
Divided:
Divided
Finishing:
Ultra finishing
With furniture:
yes
Fit out:
yes
Build:
Bricks
Concrete
Concrete
Parquet
Sand stone
Faience
Frostedglass windows
Washable walls
Metal door
Interior doors
TV cable
Internet connection
Heat station
Gas counter
CF
You can conctact us using the form below.
Contact person: Secretariat
Phone: 0742/130130
0264/333147
Fax: + 40 264 333 147
Email: office@axaimobiliare.com
Address: Cluj-Napoca, Str. Memorandumului, nr. 19



