Apartament 1 camere de vanzare in Cluj-Napoca, Gheorgheni ID 4604
Dotari imobil
Beton
Descriere imobil
Vindem apartament cu 1 camera situat in Cluj-Napoca, in cartierul Gheorgheni, intr-o locatie frumoasa si verde, in apropiere de Iulius Mall si Parcul Sportiv Gheorgheni.
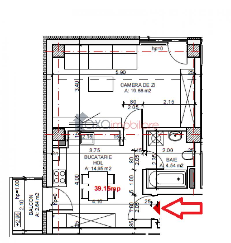
Imobilul are o suprafata utila de 39.15 mp, fiind compartimentata intr-o camera, un hol cu bucatarie, o baie si un balcon (2.64 mp).
Pozitionare: Etaj intermediar / 2S+P+9E, intr-un bloc nou cu lift.
Aceleasi suprafete si compartimentari se afla la etajele 1-7.
Se vinde la stadiul de semifinisat.
Dispune de centrala termica, calorifere, geamuri termopan si usa antiefractie.
Pretul unui garaj subteran este de 6.000 euro (optional).
Termenul de finalizare este Iunie 2018.
Opinia agentului
" Apartament compartimentat frumos, situat intr-o locatie verde din cartierul Gheorgheni, in apropiere de Parcul Sportiv si Iulius Mall. Consider ca acest apartament este potrivit pentru un cuplu; fiind pretabil si pentru investitie. "



