Apartament 2 camere de vanzare in Cluj-Napoca, Borhanci ID 4530
Dotari imobil
Beton
Descriere imobil
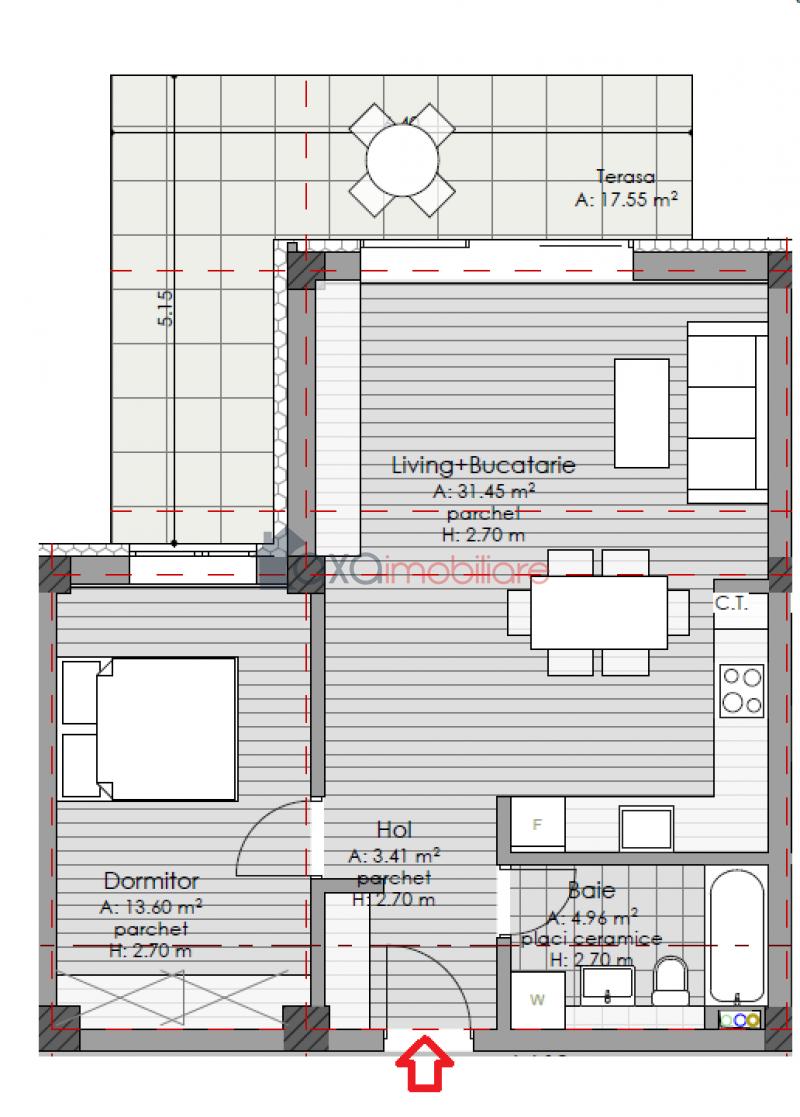
Vindem apartament cu 2 camere, semifinisat, avand o suprafata utila de 53.42 mp, situat in Cluj-Napoca, in cartierul Borhanci.
Cartierul Borhanci este ideal pentru cei care pun accent pe zona linistita cu multa verdeata.
Apartamentul este pozitionat la etaj intermediar (1/S+P+2E+ER), intr-un bloc nou cu lift si panorama deosebita asupra zonei.
Suprafata imobilului este compusa dintr-un living, 1 bucatarie, 1 hol, 1 dormitor, 1 baie si 1 terasa cu suprafata de 17.55 mp.
Imobilul dispune de energie electrica, gaz, apa, canalizare, cablu TV, cablu internet.
Dotari: centrala termica, calorifere, geamuri termopan cu tamplarie din PVC - REHAU (cu 6 camere si 3 straturi de sticla), usa antiefractie.
Se vinde la stadiul de semifinisat cu peretii gletuiti si slefuiti cu un strat de vopsea lavabila alba.
Terasa este finisata cu pardoseala greso-granit si cu balustrada din sticla securizata.
Alte dotari: videointerfon, contoare gaz, apometre.
Opinia agentului
" Oferta potrivita clientilor mei care doresc sa locuiasca intr-o locatie aerisita si nou-dezvoltata din cartierul Borhanci. Avantaje: calitate, siguranta, servicii oferite (spatii comerciale, gradinita etc. ).



