Apartament 2 camere de vanzare in Cluj-Napoca, Calea Turzii ID 4401
Pret:
69 300 EURO
Pret/mp:
1 200 EURO/m2
Nr. camere:
2
Etaj:
1/5
Bloc Nou:
da
Anul constructiei:
2017
Finalizat:
nu
Data finalizarii:
August 2018
Confort:
Marit
Suprafata utila:
57.74 m2
Balcoane:
1 LOGIE
Localitate:
Cluj-Napoca
Cartier:
Calea Turzii
Zona:
Calea Turzii
Adaugat in data:
13-11-2017
Actualizat in data:
09-10-2023
Vizite oferta:
11942
Dotari imobil
Bucatarie:
1
Bai:
1
Parcare:
da-Contra cost
Beci:
nu
Decomandari:
Semidecomandat
Finisaje:
Semifinisat
Mobilat:
nu
Utilat:
nu
Constructie:
Caramida
Beton
Beton
Geamuri termopan
Usa antiefractie
Centrala termica
Contoare gaz
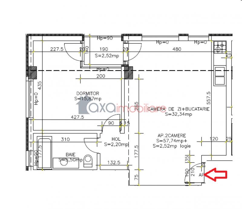
Descriere imobil
Vindem apartament cu 2 camere, semifinisat, situat in Cluj-Napoca, in zona Calea Turzii.
Apartamentul este pozitionat la etajul 1 / S+P+5E, intr-un bloc nou cu lift.
Suprafata utila este de 57.74 mp.
Compartimentare: hol, 1 living cu 1 bucatarie de tip open space, 1 dormitor, 1 baie si 1 logie.
Se vinde cu centrala termica, calorifere, geamuri termopan (6 camere si 3 sticle) si usa metalica la intrare.
Opinia agentului
" Apartament spatios, potrivit unui cuplu care doreste sa locuiasca intr-un imobil nou, in zona Calea Turzii. Pretabil atat pentru locuit, cat si pentru investitie. "
Folositi formularul de mai jos pentru a ne contacta
Persoana de contact: Ciuca Aurica
Telefon: 0752/283205
Fax: + 40 264 333 147
Email: aurica@axaimobiliare.com
Adresa: Cluj-Napoca, Str. Memorandumului, nr. 19



