Apartament 2 camere de vanzare in Cluj-Napoca, Gheorgheni ID 2518
Pret:
63 000 EURO negociabil
Pret/mp:
1 068 EURO/m2
Nr. camere:
2
Etaj:
Parter/3
Bloc Nou:
da
Anul constructiei:
2015
Finalizat:
nu
Data finalizarii:
Decembrie-Ianuarie 2016
Suprafata utila:
59 m2
Balcoane:
1
Localitate:
Cluj-Napoca
Cartier:
Gheorgheni
Strada:
Romul Ladea
Adaugat in data:
21-07-2015
Actualizat in data:
12-08-2025
Vizite oferta:
13246
Dotari imobil
Bucatarie:
1
Bai:
1
Parcare:
da
Beci:
nu
Decomandari:
Semidecomandat
Finisaje:
Semifinisat
Mobilat:
nu
Utilat:
nu
Constructie:
Caramida
Beton
Beton
Geamuri termopan
Usa antiefractie
Centrala termica
Contoare gaz
CF
Descriere imobil
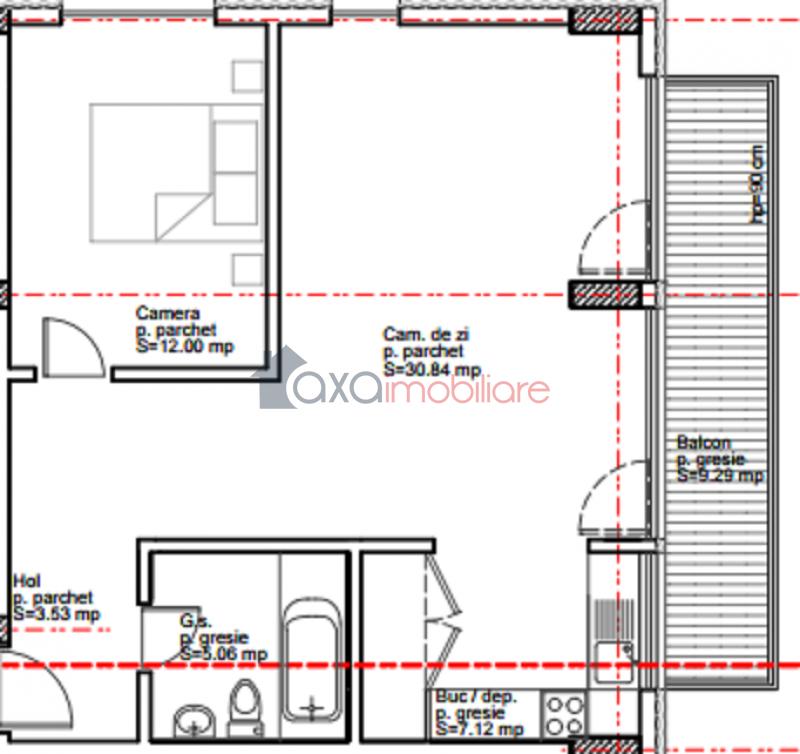
Oferim spre vanzare apartament cu 2 camere, suprafata utila 59 mp, semidecomandat, situat in zona strazii Romul Ladea din cartierul Gheorgheni, zona linistita, in apropiere de statia de autobuz.
Apartamentul este pozitionat la parterul unui imobil nou dispus pe P+3E, ce va fi finalizat in Decembrie-Ianuarie 2016.
Este compartimentat astfel: 1 living, 1 bucatarie, 1 dormitor, 1 baie, 1 hol si 1 balcon.
Va dispune de centrala termica, calorifere, geamuri termopan si usa metalica.
Se vinde la stadiul de semifinisat cu peretii gletuiti si sapa autonivelanta.
In pret este inclus 1 loc de parcare.
Se poate opta pentru aceeasi compartimentare si la etajele 1, respectiv 2.
Folositi formularul de mai jos pentru a ne contacta
Persoana de contact: Ciuca Aurica
Telefon: 0752/283205
Fax: + 40 264 333 147
Email: aurica@axaimobiliare.com
Adresa: Cluj-Napoca, Str. Memorandumului, nr. 19



