Apartament 2 camere de vanzare in Cluj-Napoca, Gheorgheni ID 3552
Dotari imobil
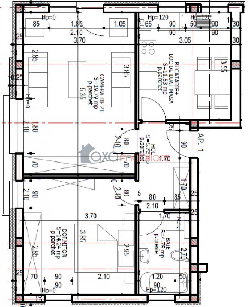
Descriere imobil
Propunem spre vanzare apartament semifinisat cu 2 camere, imobil nou, situat in Cluj-Napoca, in cartierul Gheorgheni, in zona strazii Constantin Brancusi, intr-o locatie linistita, nou dezvoltata.
Apartamentul dispune de o suprafata utila de 53 mp si este pozitionat la parterul unui imobil nou, cu regim de inaltime P+1E+ER.
Compartimentarea este decomandata: 1 camera de zi, 1 bucatarie, 1 dormitor, 1 hol, 1 baie si 1 terasa.
Se vinde la stadiul de semifinisat. (sapa autonivelanta, peretii gletuiti, geamuri termopan, usa antiefractie, centrala termica, calorifere).
Dispune de gradina cu suprafata de 22 mp.
Pretul include un loc de parcare.
Opinia agentului
"Imobil nou, frumos compartimentat, situat intr-o locatie linistita, nou dezvoltata, departe de agitatie si zgomot. Apartament ce dispune de gradina, potrivita pentru relaxare."



