Apartament 2 camere de vanzare in Cluj-Napoca, Marasti ID 4706
Dotari imobil
Beton
Descriere imobil
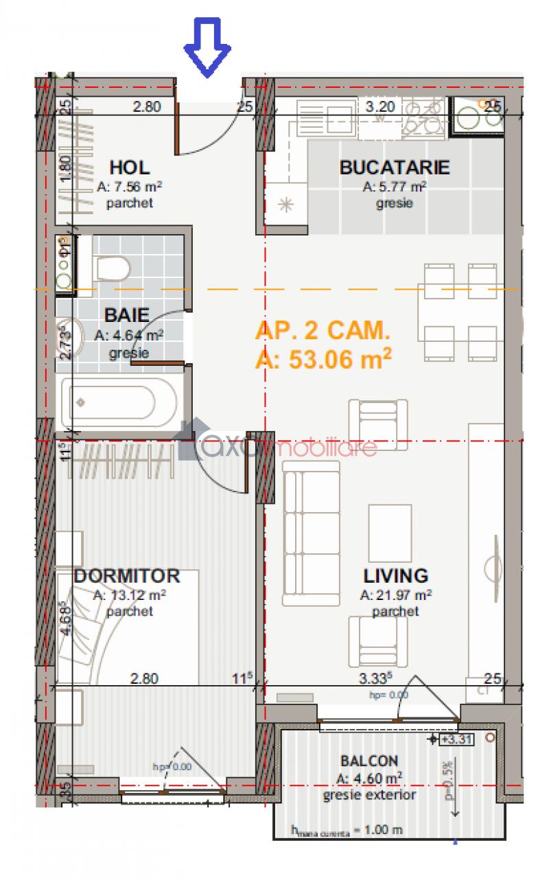
Propunem spre vanzare apartament semifinisat, compus din 2 camere decomandate (1 living, 1 dormitor), situat in Cluj-Napoca.
Localizare: cartier Marasti, zona Kaufland.
Pozitionare: etaj intermediar (1,2 - la alegere) intr-un bloc nou dispus pe regim de inaltime 2S+P+5E+ER, avand termen de finalizare in Decembrie 2019.
Suprafata utila este de 53.32 mp, fiind compusa dintr-un living, 1 bucatarie, 1 dormitor, 1 hol, 1 baie + 1 balcon.
Se vinde la stadiul de semifinisat (fiind ideal pentru cei care doresc sa isi amenajeze si finiseze locuinta dupa propriile gusturi).
Dispune de centrala termica, calorifere, geamuri termopan, usa antiefractie.
Contra cost (5.000 euro) se poate cumpara loc de parcare.
Opinia agentului
" Imobil nou, compartimentat foarte frumos, pozitionat la etaj intermediar, pretabil atat pentru locuit, cat si pentru investitie. "



