Apartament 3 camere de vanzare in Cluj-Napoca, Borhanci ID 4511
Dotari imobil
Beton
Descriere imobil
Vindem apartament cu 3 camere, semifinisat, situat in Cluj-Napoca, in cartierul Borhanci, in zona strazii Romul Ladea.
Avantajele locatiei: zona aerisita, cu spatii verzi in jur, nou-dezvoltata.
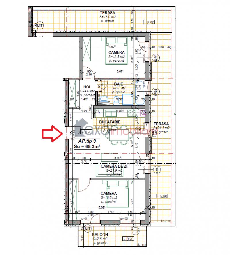
Imobilul are o suprafata utila de 68.3 mp, fiind compusa dintr-un living cu bucatarie open space, 2 dormitoare, 1 baie, hol, 1 balcon si o terasa generoasa de 21.3 mp.
Imobilul dispune de centrala termica, calorifere, geamuri termopan si usa antiefractie.
Toate utilitatile sunt trase pe pozitie.
Dispune de sapa autonivelanta si peretii gletuiti.
Termenul de finalizare este in Iunie 2018.
Pretul unui garaj este de 4.000 euro + TVA.
Opinia agentului
" Imobilul ofera o panorama deosebita asupra zonei. Dispune de o terasa generoasa, ideala pentru relaxare. Compartimentarea este gandita in stil modern. "



