Apartament 3 camere de vanzare in Cluj-Napoca, Semicentral ID 5096
Dotari imobil
Descriere imobil
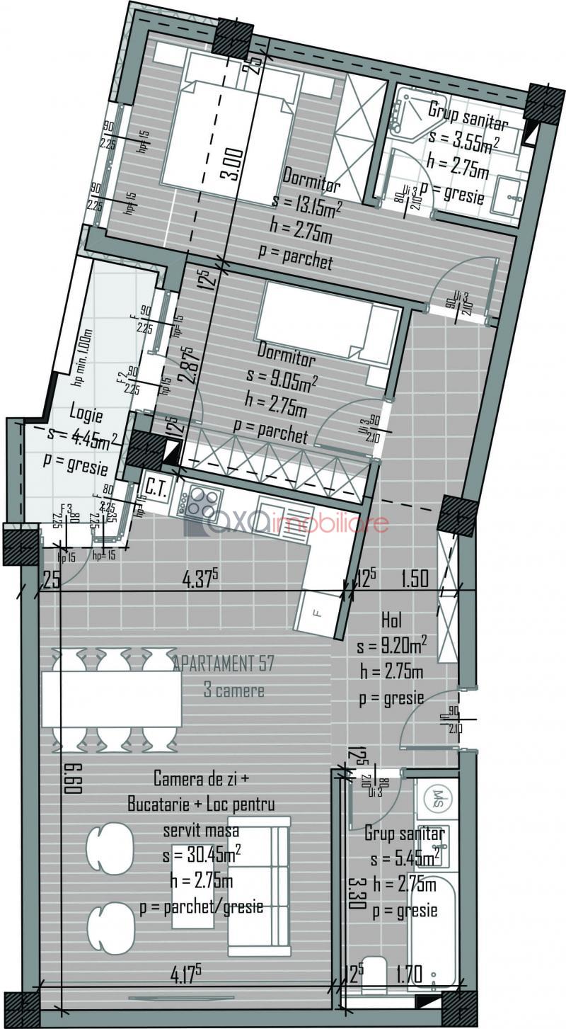
De vanzare apartament cu 3 camere, cu suprafata utila de 75.3 mp, pozitionat la etajul 3 al unui imobil nou dispus pe regim de inaltime P+5E, situat in Cluj-Napoca, in zona Semicentrala.
Compartimentarea este semidecomandata si gandita astfel: 1 living cu 1 bucatarie de tip open space, 2 dormitoare, 2 bai si 1 logie.
Dispune de centrala termica, geamuri termopan cu tamplarie din PVC, calorifere si usa antiefractie.
Se vinde la stadiul de semifinisat cu sapa autonivelamnta si peretii gletuiti.
Contra cost se poate achizitiona si 1 loc de parcare. (8500 de euro)
Opinia agentului
"Apartament spatios, pozitionat la etaj intermediar, situat intr-o locatie ce ofera diverse facilitati in imediata apropiere. Pretabil atat pentru locuit cat si pentru investitie."



