Casa 4 camere de vanzare in Cluj-Napoca, Manastur ID 3738
Dotari imobil
Detalii imobil
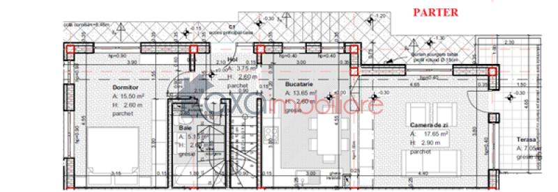
PARTER: 1 living, 1 bucatarie, 1 hol, 1 baie, 1 terasa, 1 dormitor
ETAJ: 2 dormitoare, 1 baie, zona lounge, 2 terase.
Descriere imobil
Va propunem spre vanzare imobil de tip casa, cu 4 camere, semifinisat, suprafata 130 mp, teren 230 mp, dispus pe regim de inaltime D+P+E, situat in cartierul Manastur, in zona Campului, intr-o locatie linistita, cu spatii verzi.
Dispune de compartimentare bine gandita:
DEMISOL: sala fitness, camera tehnica.
PARTER: 1 living, 1 bucatarie, 1 hol, 1 baie, 1 terasa, 1 dormitor.
ETAJ: 2 dormitoare, 1 baie, zona lounge, 2 terase.
Se vinde la stadiul de semifinisat (sapa autonivelanta, peretii gletuiti).
Dotari: centrala termica, geamuri termopan.
Alte detalii: parcare, teren 230 mp.
Opinia agentului
"Casa individuala, spatioasa, semifinisata, situata intr-o locatie linistita din cartierul Manastur, potrivita pentru o familie care pune accent pe calitate si compartimentare ."



